
En réalité on va assembler sur un châssis des éléments déjà construits : . la chaudière verticale à tubes de fumée . le moteur oscillant de 0.7 cm3 avec vanne sur le bâti . le brûleur accompagné de son réservoir de gaz ... |
|
 une idée de l'ensemble |  | | qui pourrait, une fois terminé ressembler à ce croquis. |
|  |
Sur le Web, on trouve une quantité de photos qui donnent des idées pour l'habillage avec pour caractéristique essentielle, une carrosserie qui descend très bas et cache pratiquement les roues. Il est probable que ces véhicules circulant dans des rues peuplées devaient être ainsi conçus pour limiter les risques d'accident. On notera aussi que peu d'éléments dépassent de la caisse ...
J'ai un faible pour ce tramway de Valenciennes (le Grand Nord dont je suis originaire !) mais, alors que c'est assez rare, le mien sera équipé d'une chaudière verticale.
|
|
|
 |
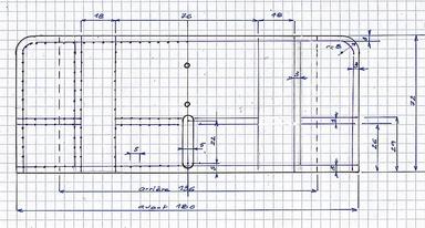
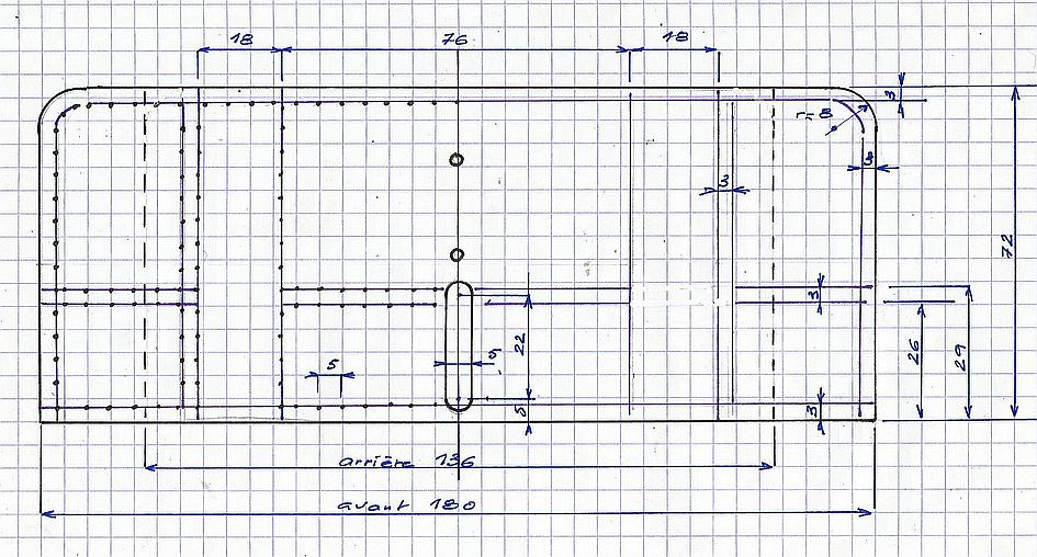
 le châssis
Dernier dessin ajusté aux dernières contraintes ... Le plancher est en alu de 2 d'épaisseur et les flancs en 3 mais on pourrait très bien utiliser du 2.
Cependant, il faut bien imaginer que des ajustements devront être faits avant de scier le plancher, surtout à l'arrière. Ainsi, pour l'emplacement du levier d'embrayage.
Quand on entreprend la construction d'un véhicule "taravana", il faut s'en tenir à une cote essentielle et ici c'est celle de 45 entre les axes du moteur et de l'axe de l'essieu.
Il n'y a pas que le châssis qu'il a fallu modifier plusieurs fois mais aussi d'autres pièces ce qui fait que les photos, tout en respectant certains usinages, ne correspondent pas toujours à ce qui sera montré en définitive.
|
|
|
Le plus simple est de commencer par les perçages effectués sur une tôle plus large que nécessaire pour pouvoir appuyer correctement le patin de la scie sauteuse. Ici perçages de 12 pour les arrondis de 6. |
| On peut même terminer à la scie sauteuse. Cependant cette découpe ne se verra pas et on pourrait ne pas l'effectuer ... |
|
|
Pour la reprise des extrémités il faut assurer le calage dans l'étau avec un rond de 6 si on veut que l'équerrage soit bon. |
| On perce les trous pour les roulements en serrant ensemble les deux flancs.
Le mieux serait d'employer des roulements à épaulement ... mais, faute d'en avoir ce sont des roulements ordinaires qu'il va falloir caler. |
|
|
Pour les caler à l'extérieur, on peut utiliser de la tôle de laiton de 0.5 d'épaisseur ou de la tôle de récupération de 0.3. Percer tous les trous et découper par la suite. |
| Pour le traçage des trous des goujons (ou vis M2 que l'on vissera de l'intérieur), c'est plus aisé de tracer sur le flanc par superposition. |
|
|
Et on obtiendra ce montage. J'avais d'abord percé le trou central à 3.5, il a finalement été porté à 4. |
| Montage des flancs sur le plancher par vis M2 qui va se faire pour la liaison avec du carré d'alu de 8 x 8. On voit qu'à l'avant un espace reste libre : il servira au passage de la tubulure de gaz mais aussi au passage de la tête de vis qui maintiendra le tampon. A l'arrière, les carrés sont disposés sur le côté.
|
|
|
 les roues et les essieux, modifications et montage
Disposition et accessoires : bague en alu qui viendra remplacer la bague en plastique ou caoutchouc de la roue d'origine, rondelles de téflon dont l'une va venir bloquer le roulement en position. A la fin, il restera la place pour une rondelle de 0.5 et un peu de jeu latéral... |
|
Pour les roues (diamètre 24 extérieur et 30 intérieur), elles proviennent de l'Atelier Vaporiste.
L'axe ne convient pas et il va falloir apporter quelques transformations. |
| Pour enlever l'essieu, on pose la roue dans l'étau et on sort l'axe d'acier en tapant à son extrémité. Pour enlever les bagues, on fait la même chose avec un rond de diamètre 6. |
|
|
Il est possible dans du rond d'alu de 8 de confectionner les bagues en série. Ici perçage à 1.6 pour taraudage à M2.
|
| Une roue terminée pour un essai de résistance. Le bagues sont collées à l'Araldite pour métaux et ça tient bien. Cependant si on se rate - tout m'arrive -, il suffit d'un coup de marteau comme pour enlever la bague d'origine. |
|
|
Reprendre au tour pour enlever la colle qui a débordé et reprendre le trou de 3 central où elle s'est peut être infiltrée. |
| On enfile des rondelles. Celle de diamètre 5 va venir se coller au roulement. Il manque encore celle de 0.5 ... |
|
|
montage du moteur
Le moteur a subi une seule transformation sur le carré d'assemblage où les fentes ont été portés à 4 mm de profondeur au lieu de 3. Pour la construction du moteur, voir cet | | album |
|
Le carré situé au milieu des bâtis du moteur va venir s'enfiler sur une bande de 9 mm de large à l'avant du plancher. Un goujon va le positionner et on le fixera définitivement avec une vis M2 qui passera dans la fente opposée. On peut s'inspirer du plan du plancher mais il vaut mieux vérifier avant que les tous taraudés correspondent bien. On a cependant le droit à une erreur (petite) puisque les fentes permettent le glissement du moteur. |
| Petite vérification utile que celle de la cote 45. Ce n'est pas très "mécanique" mais pas la suite, il y aura peu d'ajustement à faire pour que les roues dentées s'engrènent correctement. |
|
|

embrayage
On pourrait s'en passer et décider qu'on démarrera le tramway à la poussette. Mais bon ... En fait c'est bien pratique quand on veut faire les réglages, surtout à la vapeur : quand la chaudière va arriver à presque 3 bars, on démarre le moteur en position de débrayage et on peut ajuster nos vannes (celle de la chaudière et celle du moteur) pour arriver à la pression d'utilisation souhaitée. Il suffira ensuite d'embrayer et ... normalement il devrait rouler, ce "tramway nommé plaisir" !
1 - quelques calculs pour arriver à la cote 45. Le rapport final sera de 27:1 et les roues ont l'air de tourner à une vitesse réaliste.
2 - recherches pour un traînard qui va recevoir les rouages. Petit problème, il ne faut pas qu'il vienne toucher le démarreur d'où une dernière modification avec le pliage. Il faudra ajouter un ressort qui aura une double action : maintenir l'arrêt en position d'embrayage bien plaqué sur le bâti du moteur, mais aussi donner de la souplesse au levier lorsqu'on voudra le mettre en position de débrayage. Par la suite, il faudra probablement en ajouter un second.
3 - quelques cotes pour réaliser ce traînard.
Les roues dentées tourneront sur des vis M2 et on ajustera des bagues de 2 x 3 pour qu'elles ne se touchent pas. Celle de l'axe des roues doit se glisser sans toucher la contre-plaque. |
|
Les éléments du traînard dont il va falloir refaire la contre-plaque. Par la suite il faudra reprendre le perçage du levier en ajoutant un trou au milieu, sinon on n'atteint pas la position de débrayage le bas du levier venant toucher le plancher. Là aussi les trous devant recevoir les axes sont percés par superposition des deux plaques. |
| Une idée pour obtenir une soudure des "pivots" bien verticale : séparer les deux plaques par du carré de 8 qui passe exactement entre les vis M2. |
|
|
Après soudure à l'étain. La bague doit, normalement se positionner correctement grâce à l'épaulement. |
| A refaire : les roulements tournent parfaitement mais on va toucher le démarreur ! Il faut confectionner une autre contre-plaque. |
|
|
Fabrication avec de la tôle de laiton de 0.5 qui va se plier facilement : à l'étau dans un sens et à la pince dans l'autre sans la recuire pour lui garder sa rigidité et son élasticité. |
| Pour le perçage des trous, montage habituel. Percer un trou et serrer les deux plaques ; percer le second et placer une autre vis. Pour le dernier on se positionne bien à plat. La contre-plaque n'a pas encore été sciée en longueur : précaution prise avant le pliage. |
|
|
Et on a gagné les 2 ou 3 mm nécessaires ... |
| Cette fois c'est tout bon, plus rien ne touche. Avant de glisser le traînard sur l'axe des roues, penser à fixer le ressort de rappel sur la contre plaque. L'autre extrémité du ressort est maintenue par une vis placée près de la chaudière. |
|
|
Et c'est le moment de procéder à un essai de cet embrayage. Il va se passer à l'air comprimé à une pression de 1 bar.
Et tout se passe très bien ...
|
| |
|
Comment réaliser le blocage du levier d'embrayage ? On bénéficie d'une relative élasticité de la contre-plaque en tôle de 0.5. Il suffira d'ajouter sur le plancher cet accessoire et on pourra bloquer le levier grâce au cran. |
| | |
|
  vers la vapeur ...la chauffe
Pour la chaudière et ses accessoires, voir cet album |
|
Montage du réservoir et de la vanne. |
| Les dessous de la "bête". Le porte gicleur reste réglable. |
|
|
Réglage de la flamme. Pour avoir oublié cet aspect essentiel, j'ai "grillé" à l'allumage un de mes pignons. Il faut dire que ces pignons à double denture ont la roue la plus grande en Celeron ! J'ai pu essayé la transmission et le débrayage, ça marchait très bien à 0.8 bar et les roues tournait sur le chemin de roulage mais une forte odeur de roussi a interrompu l'expérience. Y'a pu qu'à en fabriquer car je n'en trouve pas en laiton ou en acier de cette dimension.
|
| Le montage avant un nouvel essai. Pas encore de tubulure mais un tuyau de silicone. Quand on est pressé ... on fait des bêtises (voir le commentaire précédent). |
|
|
J'espère que cela tournera aussi bien la prochaine fois. Pour cet essai en position de débrayage montage de la pression juste avant 3 bars sinon la soupape pré-réglée s'ouvre. Ouverture de la vanne de la chaudière, ça descend un peu quand on titille le démarreur et on voit la vapeur condensée avancer dans le tuyau, on abaisse un peu la vanne du moteur, et on lance. La pression va se stabiliser à 1.8 bar et je vais mener l'expérience pendant 5 minutes. La pression ne tombera jamais et la consommation sera de 22 cl. Tout bon.
La vidéo ne dure pas longtemps mais je n'allais pas vous ennuyer pendant 5 minutes.
|
| |
|
 |
|
 carrosserie | Elle est réalisée avec de la tôle de récupération de 0.3 mm environ d'épaisseur provenant de boîtes diverses. Au départ mon intention était de souder à l'étain les différents éléments et tout a été décapé après la découpe. Malheureusement, impossible d'effectuer ces soudures et le montage s'est fait par vis M1.6.
Ce qu'il faut obtenir : une carrosserie qui se glissera sans problème sur le châssis, aussi les dimensions sont un peu plus grande que celles du châssis. |
|
 | | partie avant et partie arrière qui ne comporte pas d'arrondis. |
|  | | les flancs et les parties intermédiaires |
|
|
Toute la découpe se fait avec des ciseaux. Les rivets sont imités par poinçonnage. Le problème est celui de l'alignement correct des empreintes : tracer avec une pointe fine les lignes parallèles et on va obtenir sur la tôle ou dans la peinture (mieux) une ligne avec un léger relief. Toujours à la pointe fine et en appuyant avec la main, faire une première empreinte qui situe le rivet. Placer alors la tôle sur une plaque d'alu et se servir d'un pointeau et du marteau pour imiter le rivet. Quelques essais préalables pour marteler avec une force identique ... |
|
Pour la réalisation des arrondis, utilisation d'un rond de 16 de diamètre. |
| Réalisation d'un côté ... |
|
|
... puis de l'autre. |
| Traçage des intermédiaires ... |
|
|
... et découpe. La découpe des marchepieds se réalise à la scie fine : c'est assez simple si on penche la lame de la scie vers l'avant et sur le côté. Finition de l'arrondi à la lime. |
| Les deux tôles intermédiaires pour lesquelles on n'oublie pas les rivets. |
|
|
réalisation des supports
dans lesquels vont venir se maintenir les montants verticaux. Travail dans de la même tôle : ciseaux et pinces. Ces supports seront fixés à la caisse par des boulons M1.6, écrou à l'extérieur. |
| |
|
|
main-courante
Il m'a semblé qu'on recherchait pour ces tramways le minimum de choses dépassant de la carrosserie. Aussi pas d'échelle cette fois, mais une main-courante intérieure réalisée avec du rond de laiton de 2 que l'on maintient par des supports en tôle. |
|
Vue de l'intérieur d'un des flancs : fixation de la main-courante et support de barrot. |
| Vue de l'extérieur. Une idée non réalisée : faire en sorte que cela dépasse le moins possible à l'extérieur en réduisant la hauteur de la vis. Par la suite, c'est l'écrou qui apparaîtra. |
|
|
|

La caisse doit venir s'appuyer sur le châssis, pour l'arrière on ajoutera deux équerre en tôle, pour l'avant, on pourra se servir d'une découpe dans la partie intermédiaire. |
|
|

montants verticaux
qui vont soutenir le toit. La partie droite est en rond de 2 avec un filetage en bout à M1.6. Les parties arrondies sont en rond de 1.5. |
|
Le montage que l'on peut réaliser sur du placo : les parties courbes appuient sur un plat de 1 x 2 percé à 1.7, comme dans la position qui sera la leur lors du montage final. La soudure se fait à l'étain au fer à souder. C'est l'envers de cette soudure que l'on montrera à l'extérieur ! |
| Il n'en faut que 12 comme celui-là ... |
|
|
tampon et crochet
Différent que sur les locos, on ne trouve qu'un tampon. Probablement parce que le rayon des rails était plus accentué. On le réalise d'une manière classique dans du rond d'alu de diamètre 10.
Pour le crochet, il est tiré d'un rond d'alu de diamètre 6 |
|
| Toutes les pièces pour deux tampons. Le montage se fait à l'Araldite, la fixation sur la caisse par une vis M2. |
|
|
|
|
  améliorationssupport du brûleur
Lors d'un essai, sous les vibrations, la vis qui le maintenait a dû se desserrer et il s'est placé de biais : gênant car cela modifie le réglage et que le montage va traîner sur les rails ... Un support a été fabriqué dans une grille récupérée sur un ordinateur. On l'installe près la mise en place du brûleur et il faut ajouter un trou au support de la chaudière. |
|
La patte obtenue par pliage est percée à 2.5 pour être taraudée à M3 et recevoir la vis de droite. |
| Montage avec un écrou M3 : plus rien ne bougera. |
|
|
 déshuileur
Notre petit moteur produit pas mal de condensats au démarrage. Un déhuileur s'impose. Celui proposé est un peu grand ... mais il a l'avantage de se démonter facilement pour la vidange.
|
|  | | une idée pour le blocage de la tubulure |
|
|
Assemblage des tubes de cuivre 3 x 4 et 4 x 5. |
| Montage sur le tube. |
|
|
Après brasure à l'argent du montage. |
| Les fonds et le support de cheminée qui seront soudés à l'étain. Le tube 3 x 4 de la cheminée ne sera pas soudé. |
|
|
Montage sur le côté de la chaudière avec un tuyau en silicone. Petit problème, la tuyauterie menant au moteur risque de toucher l'axe de la roue. On le solutionne en ... |
| ... prévoyant un système de blocage de la tubulure comme celui-ci. |
|
|
 les essais | | Ils ont lieu dans l'atelier et sur les rails. |
|
|
Bon, il est vrai que ce n'est pas très rapide ... Cependant il faudrait revoir tout le montage des engrenages pour obtenir mieux. Ici ma démultiplication est de 27:1, on pourrait probablement la réduire de moitié car le moteur de 0.7 est vaillant. Il existe aussi la solution de réduire le montage à 4 engrenages au lieu de 5, mais cela suppose de modifier le moteur pour que la marche avant se fasse ... vers l'avant !
|
|
 |
 | Il reste à construire le support du toit et on commence par réaliser un cadre avec de la cornière de laiton de 6 x 6. Dans mes stocks j'en ai trouvé d'épaisseur 1 et 0.5, le 1 pour les extrémités. |
|  | Il ne faut pas se leurrer, il n'est pas évident de tout réaliser par traçage .... et si on se sert uniquement du croquis ci-contre, les montants risquent de ne pas être positionnés d'équerre ! J'ai procédé en utilisant des gabarits en bois (baguette de 2 x 5) et je me suis servi des plots pour tracer les trous devant recevoir le haut des montants. Une fois les baguettes montées, on prend les dimensions réelles qu'on reportera sur les équerres en laiton.
Pas de photo pour ce montage, mais j'ai retrouvé les baguettes ... |
|
|
Découpe pour l'assemblage. Il faut percer à 2 avant de plier et ne pas oublier de recuire le bout de la cornière. |
| L'assemblage se fait à l'aide de vis M1.6 ... |
|
|
... et le montage est consolidé par de l'étain. Ce n'est qu'ensuite que l'on percera les trous au diamètre 2 pour recevoir les montants. |
|  Le toit, simple tôle où l'on peut imiter des rivets et que l'on perce pour le passage des cheminées. Il restera amovible et sera maintenu en place par de aimants de diamètre 5 et de longueur 8.
Pour maintenir les aimants, on peut utiliser de gros dominos qui ont un diamètre intérieur de 5.3. L'aimant sera bloqué par une vis M4 à la partie supérieure . |
|
|
Souder à l'étain un rond de diamètre 5.3 à ajuster au domino. |
| Souder une patte en laiton de 0.5 d'épaisseur sous le montage après sciage et reprise au tour. |
|
|
Montage obtenu avec perçage pour la fixation ... |
| ... au milieu des extrémités du cadre. |
|
|
Petite garniture de chaque côté du cadre. |
| Garniture qu'il faudra découper et percer pour qu'elle vienne se visser entre les montants latéraux tout en permettant le passage des supports des aimants et de la tête des vis maintenant le cadre. |
|
|
Après peinture, mise en place des montants verticaux qui ont été passés au Miror. Les montants doivent venir s'appuyer sur les vis qui maintiennent les supports.
Vérification à effectuer : les arrondis latéraux et des extrémités ne doivent pas se chevaucher et il sera peut-être nécessaire d'opérer un léger sciage. |
| On arrive à placer les extrémités filetées des montants assez facilement en commençant par une extrémité et en maintenant ce côté par des écrous à peine vissés. |
|
|
Quand on a bloqué les écrous latéraux, les arrondis des montants venant se plaquer sur le cadre, on enlève ceux des extrémités et on monte les garnitures. |
| Une fente à ne pas oublier, celle du passage de la roue dentée du démarreur : il faudra vérifier une fois la caisse posée sur le châssis que cela ne frotte pas. |
|
|
les lanternes
On les réalise simplement avec une coupelle en laiton de diamètre 13 extérieur (quincaillerie) et un morceau de tube de 10 x 12 de longueur 8. Pour souder à l'étain la coupelle, on exécute à la lime un chanfrein sur le tube. On enduit ce chanfrein de soudure, on pose la coupelle bien poncée (elle est vernie) et on chauffe. Un support en alu de diamètre 10 sera percé à M2 et on y glissera le montage réalisé. Normalement il n'y a pas besoin de coller. La vis M2 qui servira au montage bloquera en même temps la rondelle de plexi qu'on ajoutera avant de glisser le tube de laiton. |
|  | | coupelle dépolie |
|
|
 | | tube chanfreiné |
|  | | avant la chauffe |
|  | | agrandissement : outil et lime |
|  | | support en alu |
|  | | lanterne à glisser |
|
|
 montage final | | après peinture à la bombe pour barbecue ou radiateur. |
|
 | | le châssis |
|  | | les roues et la transmission |
|  | | réservoir et vanne de gaz |
|  | | la chaudière et son support |
|
|
 | | le brûleur |
|  | | réglage de l'embrayage |
|  | | le moteur |
| A divers stades on fera des essais à l'air comprimé pour, une fois l'embrayage bien réglé, monter la tuyauterie. |
|
|
|
coffre pour réservoir
Encore de la tôle de récupération avec au départ en gabarit en carton. A l'arrière, une patte le maintiendra grâce à la vis de la lanterne, à l'arrière, son élasticité permettra de le coincer sous une patte maintenue par un des écrous du support de la chaudière. |
|
|
 essai final | Enfin on y arrive ...
Une fois les pleins faits et le décanteur (déshuileur) vidé, on allume le brûleur. Comme il y a peu de place sous le tramway, le mieux est de le faire en présentant la flamme au haut de la cheminée : ça fait Plof, on vérifie que c'est allumé et on peaufine le réglage de la flamme (aucune ne doit sortir du support. On présente la main au-dessus de la cheminée et ça doit chauffer.
A 2 bars, on commence à s'inquiéter, on ouvre légèrement la vanne,la pression tombe un peu mais remonte presque aussitôt (bon signe que le brûleur fait son travail. On ouvre un peu plus et on titille le démarreur. Après élimination des condensats, il démarre.
Approcher et installer la caisse qui risque, c'est le cas ici, d'accrocher le démarreur et de stopper le moteur. Pas grave, un coup de pouce et il redémarre du premier coup. La pression va légèrement descendre.
Et il ne reste plus qu'à enclencher l'embrayage ... C'est chaud ! Après la mise en route, la pression se stabilise à 1.2 bars comme aux essais préalables.
En ordre de marche, le tramway atteint une masse d'environ 1.5 kg.
|
| |
|
des améliorations
sont possibles : . allonger le boisseau du registre vapeur pour que la poignée débouche au milieu du portillon et ainsi on pourra encore peaufiner le débit de vapeur une fois la caisse montée . prévoir un levier de renvoi démontable pour celui de l'embrayage de manière à pouvoir le déplacer sans se chauffer les doigts . et bien d'autres que vous découvrirez pour améliorer cette base ... |
|
Cet album a servi de base à un article paru dans l'Escarbille n° 141, 142, 143, 145, 146 (2015 - 2017) .
|
|
 un peu de doc ... |  | ... grâce à Bruno. Dans la région lilloise, une association s'occupe de la restauration des tramways qui étaient mon quotidien. http://www.amitram.fr/ |
|  | | La couleur jaune était dans mes souvenirs lointains associée à ce mode de transport, ce qui explique l'abandon du vert prévu au départ ! |
|
|
  album terminéDes commentaires ? Des questions ? ... écrivez-moi |
| | | | |
|